Accueil Nos annonces de locations >

Appartement à louer - Annemasse 3 pièces de 65.79 m²

Nous contacter
ANNEMASSE CENTRE - rue Arisitide Briand
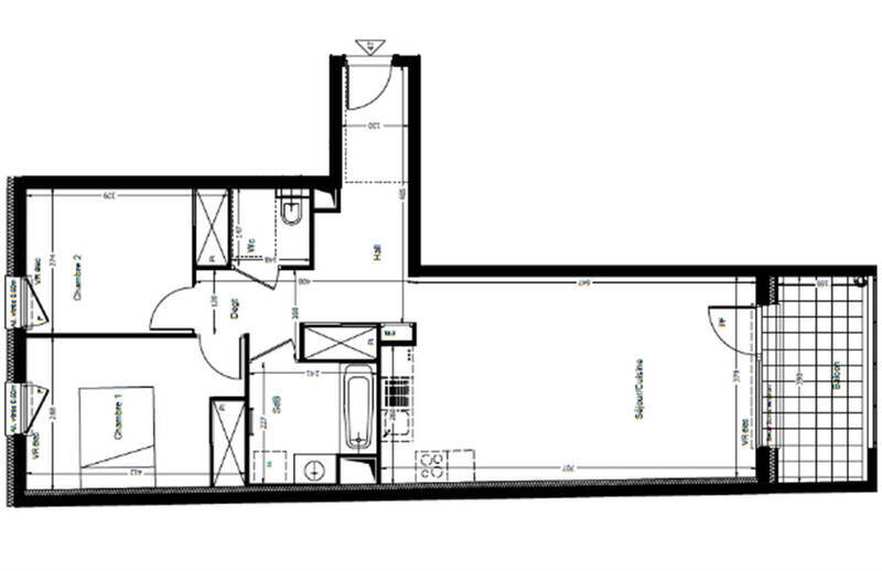
Dans une résidence neuve, beau T3 traversant au 4ème étage composé d'une entrée avec placard, une cuisine ouverte sur un séjour avec balcon, un dégagement menant à 2 chambres avec placards, une salle de bains et un toilette séparé.
Pour votre confort, vous disposez d'un cellier privatif sur le palier et d'un garage en sous sol.

Chauffage, eau chaude et eau froide collectifs.

Disponible le 9 janvier 2026

Loyer : 1465 euros
Provisions sur charges : 150 euros (comprenant charges communes générales + consommation eau froide, eau chaude et chauffage)
Soit un total de 1615 euros par mois
Dépôt de garantie : 1465 euros

Caractéristiques

Surface habitable : 65.79 m²

ÿ Nbre de pièces : 3

ÿ Chambre : 2

Étage : 4

Nbre d'étages : 7

û Salle de bains : 1

Année de construction : 2024

Ascenseur : Oui

Cave : Oui

Ì Type chauffage : CollectifComptageIndividuel

Ì Nature chauffage : Gaz

Type cuisine : Equipée - Aménagée

Loyer : 1 615 € / mois CC
Dont :
- 150 € de provision pour charges locatives (régularisation annuelle)

Honoraires à charge locataire TTC : 855,27 €
dont 197,37 € pour l’état des lieux
Dépôt de garantie : 1 465 €

Les informations sur les risques auxquels ce bien est exposé sont disponibles sur le site Géorisques : www.georisques.gouv.fr

Diagnostic de performance énergétique

B
v Date de réalisation : 23/05/2024
Classe énergie
B
81 kWh/m².an
Classe climat
A
3 kg CO2/m².an

Estimation des coûts annuels d’énergie du logement
Entre 354 € et 478 € par an
Prix moyens des énergies indexés sur l'année 2021 (abonnements compris)

Environnement et localisation

Ce bien vous intéresse ?

Laissez nous un message

Si vous cochez non, vous indiquez que vous ne souhaitez pas recevoir de lettre d’information sur l'actualité de l’immobilier, les offres et produits de Imogroup Grand Genève.

En cliquant sur Envoyer vous acceptez de recevoir des informations concernant le bien présenté ci-dessus et des offres similaires susceptibles de vous intéresser.

Envoyer
*Les champs marqués d'un astérisque (*) sont obligatoires. Recueil de vos informations personnelles afin de pouvoir gérer la relation client et apporter conseils et informations complémentaires au niveau de la marque Imogroup Grand Genève et le cas échéant au niveau des partenaires et prestataires. Les données transmises via ce formulaire sont destinées uniquement au personnel de Imogroup Grand Genève et sont conservées pour une durée n’excédant pas celle nécessaire à la réalisation des finalités précitées.
Conformément au Règlement européen n°2016/679/UE du 27 avril 2016 sur la protection des données personnelles et à la loi « informatique et libertés » du 6 janvier 1978 modifiée, vous disposez d'un droit d'interrogation d'accès, de rectification, d’effacement, de portabilité et de limitation du traitement des données vous concernant ainsi que du droit de communiquer des directives sur le sort de vos données après votre mort. Vous avez également la possibilité de vous opposer au traitement des données vous concernant pour motifs légitimes. Vous pouvez exercer ce droit par courrier électronique adressé à : administration@imogroup-leman.com, ou par courrier à IMMOBILIER LEMAN SAS - 2 Rue des Vignes de Bachelard - 74140 - Douvaine, accompagné d'une copie d'un titre d'identité. Pour plus d'informations consulter nos Mentions légales.